喜訊|我司成功中標羅湖區東湖街道城中村綜合治理工程(設計)II標段項目
發布時間:2018-10-18 00:00 文章來源:
今年9月,我司參加了由華潤(深圳)有限公司組織的《羅湖區東湖街道城中村綜合治理工程(設計)II標段》公開招標工作。我司憑借著強大的綜合技術實力、優秀的競標方案和良好的信譽保證,贏得了甲方及各評審專家的高度肯定,最終以綜合總分第一的好成績成功中標此項目。
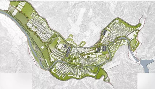
梧桐山社區整治總平面圖
本項目綜合治理范圍為深圳市羅湖區梧桐山社區,該社區位于羅湖區東北部,梧桐山北麓,深圳水庫的上游,屬于深圳水庫二級水源保護區,面積約429公頃,由7個自然村組成,分別為:赤水洞村、茂仔村、坑背村、禾塘光村、塘坑仔村、橫排嶺村和虎竹嚇村。
結合梧桐山社區村民訴求以及《深圳市羅湖區“城中村”綜合治理2018-2020年行動計劃》等文件的要求,本次投標方案在嚴格保護深圳水庫飲用水水源生態環境的前提下,從社區治安治理工程、消防安全治理工程、用電安全治理工程、燃氣安全治理工程、弱電管線治理工程、環境衛生治理工程、市容秩序治理工程、交通秩序治理工程等十個方面科學合理的對梧桐山社區進行綜合治理設計。
此次投標,以我司市政事業部市政規劃組為主導,市政設計所、環境景觀所聯合參與,充分體現了我司綜合協調能力。通過建設此項目,可以解決梧桐社區現狀基礎設施缺乏、環境衛生和消防安全突出等問題,進一步提升社區整體環境品質和居民幸福感,為后續特色小鎮打造做好鋪墊。

喜訊|我司成功中標《平湖樞紐地區城市設計與更新統籌實施方案》規劃研究項目